貸店舗物件を探す
Shop Search物件詳細情報神戸市中央区下山手通2丁目
| 物件カテゴリ | 店舗・リース店舗・バー・スナック |
|---|---|
| 交通 |
・阪急神戸線神戸三宮より徒歩4分 |
| 所在地 | 神戸市中央区下山手通2丁目 MAP |
| 保証金/敷引・償却金 | 10万円/- |
| 権利金/契約期間 | -/2年 |
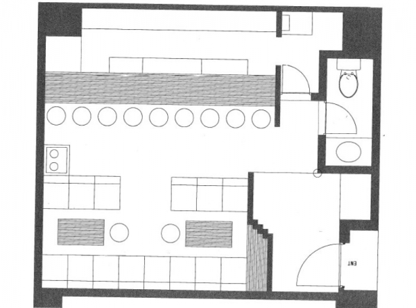
| 専有面積/坪数/坪単価 | 36.36m2/11坪/17,500円 |
| 駐車場/駐車可能台数 | /- |
| 取引態様 | 媒介 |
| 完成年月 | 1989年11月 |
| その他費用 | 看板代 118,800円 鍵交換代 13,200円 |
| 建物構造/建物階数 | 鉄骨造9階建て(地下1階) |
| 所在階/部屋番号 | 地上7階部分/703号室 |
| 現況 | 空き |
| 引渡し | 相談 |
| 設備・条件 | トイレ、エレベータ、エアコン、給湯、キッチン、照明 |
| コメント | 生田新道に面した約11坪店舗☆スナック・バーに最適です!カウンター席・ボックス席・ボトル棚・トイレ・空調など設備揃っています。これから開業をお考えの方にお勧めです。お問い合わせお待ちしております!! テナントホーム担当:タルタニ |
| この物件のお問い合わせ先 | ||
|---|---|---|
|
物件番号 | 200027010374 |
|
||






