貸店舗物件を探す
Shop Search物件詳細情報神戸市中央区下山手通2丁目
| 物件カテゴリ | 店舗・居抜き店舗・軽飲食・重飲食 |
|---|---|
| 交通 |
・阪急神戸線神戸三宮より徒歩5分 |
| 所在地 | 神戸市中央区下山手通2丁目 MAP |
| 保証金/敷引・償却金 | -/- |
| 権利金/契約期間 | -/2年 |
| 専有面積/坪数/坪単価 | 89.1m2/26.95坪/15,510円 |
| 駐車場/駐車可能台数 | /- |
| 取引態様 | 媒介 |
| 完成年月 | 1996年11月 |
| その他費用 | - |
| 建物構造/建物階数 | 鉄骨造7階建て |
| 所在階/部屋番号 | 地上6階部分/601号室 |
| 現況 | 空き |
| 引渡し | 即引渡し可 |
| 設備・条件 | エレベータ、エアコン、キッチン |
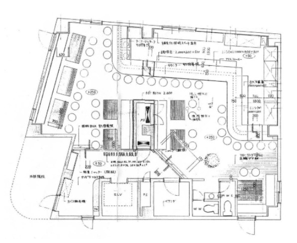
| コメント | 即入居可のレストラン居抜き物件です!厨房設備あり!!(一部撤去済み)飲食店向きの角地ビルで、眺望も良好です♪飲食店が立ち並ぶエリアで集客効果も期待できます!内覧のご予約ご相談ぜひお待ちしております!担当:タルタニ |
| この物件のお問い合わせ先 | ||
|---|---|---|
|
物件番号 | 200027010709 |
|
||







