貸店舗物件を探す
Shop Search物件詳細情報神戸市中央区中山手通1丁目
| 物件カテゴリ | 店舗・居抜き店舗・美容・バー・軽飲食・スナック・重飲食 |
|---|---|
| 交通 |
・阪急神戸線神戸三宮より徒歩4分 |
| 所在地 | 神戸市中央区中山手通1丁目 MAP |
| 保証金/敷引・償却金 | -/- |
| 権利金/契約期間 | -/2年 |
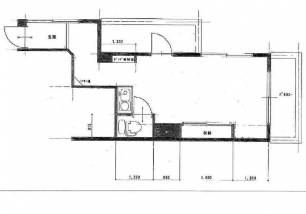
| 専有面積/坪数/坪単価 | 18.38m2/5.56坪/12,410円 |
| 駐車場/駐車可能台数 | /- |
| 取引態様 | 媒介 |
| 完成年月 | 1981年12月 |
| その他費用 | 鍵交換代 22,000円 ゴミ代 2,500円 |
| 建物構造/建物階数 | 鉄筋コンクリート造3階建て(地下1階) |
| 所在階/部屋番号 | 地上3階部分/301号室 |
| 現況 | 空き |
| 引渡し | 即引渡し可 |
| 設備・条件 | トイレ、エアコン、キッチン、利用時間、照明 |
| コメント | 三宮駅チカ繁華街、人目を惹く外観の3階店舗。エステ・飲食・事務所など最適です!新設ミニキッチン・トイレ・エアコン・ダウンライド・収納有ります。 テナント専門担当が他社にない物件も含めて物件のご紹介をさせて頂きます。 もちろん条件等も含め良いご提案やご紹介をさせて頂きます。ご連絡お待ちしてます。 テナントホーム担当:タルタニ TEL:078-335-7835 |
| この物件のお問い合わせ先 | ||
|---|---|---|
|
物件番号 | 200027010766 |
|
||







