貸店舗物件を探す
Shop Search物件詳細情報神戸市中央区下山手通2丁目
| 物件カテゴリ | 店舗・リース店舗・バー・スナック・ラウンジ |
|---|---|
| 交通 |
|
| 所在地 | 神戸市中央区下山手通2丁目 MAP |
| 保証金/敷引・償却金 | 10万円/- |
| 権利金/契約期間 | -/2年 |
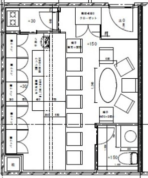
| 専有面積/坪数/坪単価 | 28.42m2/8.6坪/19,186円 |
| 駐車場/駐車可能台数 | /- |
| 取引態様 | 媒介 |
| 完成年月 | 1989年11月 |
| その他費用 | 看板代 118,800円 鍵交換代 13,200円 |
| 建物構造/建物階数 | 鉄骨造9階建て(地下1階) |
| 所在階/部屋番号 | 地上3階部分/304号室 |
| 現況 | 空き |
| 引渡し | 即引渡し可 |
| 設備・条件 | トイレ、エレベータ、エアコン、給湯、キッチン |
| コメント | 三宮駅から近く、落ち着いた内装のスナック・バー向けリース店舗です!設備揃っているのですぐに営業を始められます! 神戸の三宮・元町でお店探しならお任せください。テナント専門担当が他社にない物件も含めて物件のご紹介をさせて頂きます。 テナントホーム担当:タルタニ |
| この物件のお問い合わせ先 | ||
|---|---|---|
|
物件番号 | 200027010835 |
|
||







