貸店舗物件を探す
Shop Search物件詳細情報神戸市中央区中山手通1丁目
| 物件カテゴリ | 店舗・リース店舗・バー・スナック |
|---|---|
| 交通 |
・阪急神戸線神戸三宮より徒歩3分 |
| 所在地 | 神戸市中央区中山手通1丁目 MAP |
| 保証金/敷引・償却金 | 10万円/- |
| 権利金/契約期間 | -/2年 |
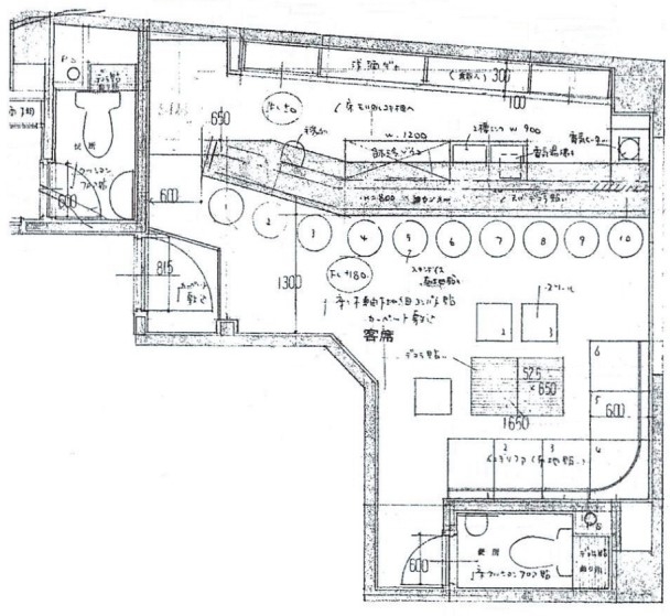
| 専有面積/坪数/坪単価 | 29.75m2/9坪/15,889円 |
| 駐車場/駐車可能台数 | /- |
| 取引態様 | 媒介 |
| 完成年月 | 1985年11月 |
| その他費用 | 看板代 57,200円 鍵交換代 13,200円 |
| 建物構造/建物階数 | 鉄骨造8階建て(地下1階) |
| 所在階/部屋番号 | 地上7階部分/7F-C号室 |
| 現況 | 空き |
| 引渡し | 相談 |
| 設備・条件 | トイレ、エレベータ、エアコン、キッチン、利用時間、照明 |
| コメント | 三宮繁華街の7階・約9坪リース店舗。カウンター・ボックス席等設備揃っています。飲食店が多いエリアで集客見込めます。 お探しの方は是非ご連絡お願い致します。 テナントホーム担当:タルタニ TEL:078-335-7835 |
| この物件のお問い合わせ先 | ||
|---|---|---|
|
物件番号 | 200027011521 |
|
||







