貸店舗物件を探す
Shop Search物件詳細情報神戸市中央区下山手通2丁目
| 物件カテゴリ | 店舗・リース店舗・バー・スナック・ラウンジ |
|---|---|
| 交通 |
|
| 所在地 | 神戸市中央区下山手通2丁目 MAP |
| 保証金/敷引・償却金 | 15万円/- |
| 権利金/契約期間 | -/3年 |
| 専有面積/坪数/坪単価 | 31.74m2/9.6坪/12,054円 |
| 駐車場/駐車可能台数 | /- |
| 取引態様 | 媒介 |
| 完成年月 | 1986年11月 |
| その他費用 | 看板代 100,100円 鍵交換代 35,200円 |
| 建物構造/建物階数 | 鉄骨鉄筋コンクリート造4階建て(地下1階) |
| 所在階/部屋番号 | 地上2階部分/202号室 |
| 現況 | 空き |
| 引渡し | 相談 |
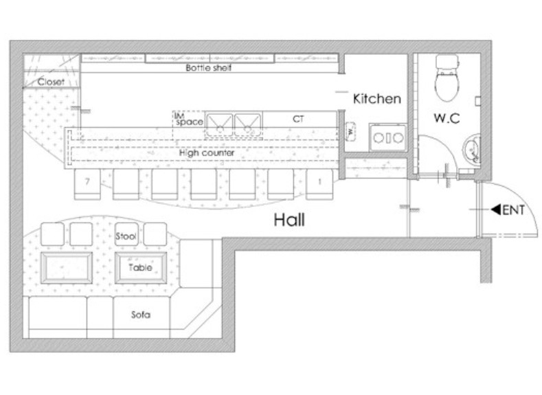
| 設備・条件 | トイレ、エアコン、キッチン、照明 |
| コメント | 三宮各駅から近くの2階リース店舗!ラウンジ仕様です! ボトル棚・カウンター・ボックス席・エアコン・冷蔵庫など設備充実です!※画像を変更しました 三宮・元町で店舗をお探しの方、ご連絡ください。 テナント専門担当者が良いご提案や紹介をさせていただきます。 もちろん諸条件のご相談もお任せください。 テナントホーム担当:タルタニ TEL:078-335-7835 |
| この物件のお問い合わせ先 | ||
|---|---|---|
|
物件番号 | 200027012043 |
|
||






