貸店舗物件を探す
Shop Search物件詳細情報神戸市中央区琴ノ緒町5丁目
| 物件カテゴリ | 店舗・美容・物販 |
|---|---|
| 交通 |
・阪急神戸線神戸三宮より徒歩3分 |
| 所在地 | 神戸市中央区琴ノ緒町5丁目 MAP |
| 保証金/敷引・償却金 | -/- |
| 権利金/契約期間 | -/- |
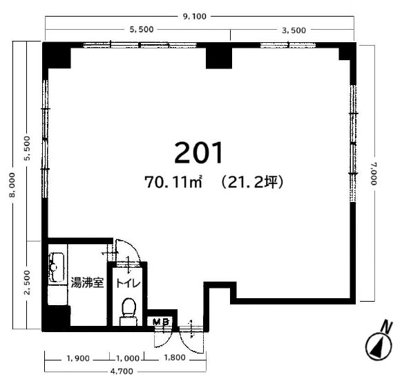
| 専有面積/坪数/坪単価 | 70.11m2/21.21坪/9,335円 |
| 駐車場/駐車可能台数 | /- |
| 取引態様 | 媒介 |
| 完成年月 | 1979年11月 |
| その他費用 | 鍵交換代 11,000円 |
| 建物構造/建物階数 | 鉄筋コンクリート造10階建て |
| 所在階/部屋番号 | 地上2階部分/201号室 |
| 現況 | 空き |
| 引渡し | 期日指定 |
| 設備・条件 | トイレ、エレベータ、給湯、利用時間 |
| コメント | 三宮フラワーロード近くの店舗・事務所に空き予定が出ました!飲食・学習塾は不可です!エレベーター・トイレ・給湯室有ります。 三宮で店舗をお探しの方ご連絡ください!テナント専門の担当者がご紹介・ご案内させていただきます。 テナントホーム担当:高野 |
| この物件のお問い合わせ先 | ||
|---|---|---|
|
物件番号 | 200027012190 |
|
||


