貸店舗物件を探す
Shop Search物件詳細情報神戸市中央区琴ノ緒町5丁目
| 物件カテゴリ | 店舗・居抜き店舗・軽飲食・重飲食 |
|---|---|
| 交通 |
|
| 所在地 | 神戸市中央区琴ノ緒町5丁目 MAP |
| 保証金/敷引・償却金 | -/- |
| 権利金/契約期間 | -/10年 |
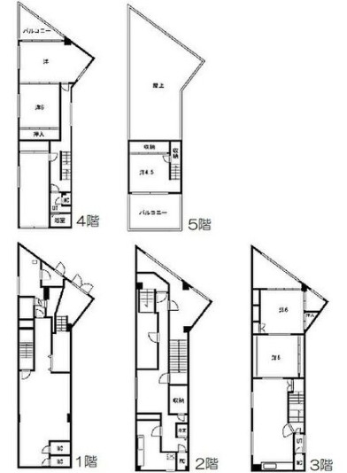
| 専有面積/坪数/坪単価 | 279.39m2/84.52坪/6,507円 |
| 駐車場/駐車可能台数 | /- |
| 取引態様 | 媒介 |
| 完成年月 | 1960年1月 |
| その他費用 | - |
| 建物構造/建物階数 | 鉄筋コンクリート造5階建て |
| 所在階/部屋番号 | 地上1階部分/1-5F号室 |
| 現況 | 空き予定 |
| 引渡し | 期日指定 |
| 設備・条件 | トイレ、キッチン、照明 |
| コメント | 三ノ宮駅近くの1棟貸(5階建て)店舗に空き予定が出ました。飲食店可能です!10年更新の定期借家契約となります。 神戸の三宮・元町でお店探しならお任せください。テナント専門担当が他社にない物件も含めて物件のご紹介をさせて頂きます。 ご連絡お待ちしてます。 テナントホーム担当:タルタニ TEL:078-335-7835 |
| この物件のお問い合わせ先 | ||
|---|---|---|
|
物件番号 | 200027012212 |
|
||







