貸店舗物件を探す
Shop Search物件詳細情報神戸市中央区加納町4丁目
| 物件カテゴリ | 店舗・リース店舗・スナック・ラウンジ |
|---|---|
| 交通 |
・神戸地下鉄西神線三宮より徒歩3分 |
| 所在地 | 神戸市中央区加納町4丁目 MAP |
| 保証金/敷引・償却金 | 25万円/- |
| 権利金/契約期間 | -/3年 |
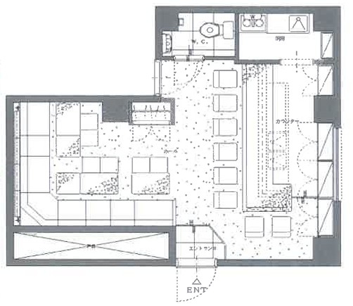
| 専有面積/坪数/坪単価 | 41.32m2/12.5坪/16,984円 |
| 駐車場/駐車可能台数 | /- |
| 取引態様 | 媒介 |
| 完成年月 | 1996年11月 |
| その他費用 | - |
| 建物構造/建物階数 | 鉄骨造7階建て |
| 所在階/部屋番号 | 地上3階部分/302号室 |
| 現況 | 空き予定 |
| 引渡し | 相談 |
| 設備・条件 | トイレ、エレベータ、エアコン |
| コメント | 三宮駅チカのリース店舗です!ボトル棚・カウンター・テーブル・椅子・エアコン・台下冷蔵庫などの設備あり!ラウンジに最適です! これからスナック・ラウンジなど開業をお考えの方に最適です! テナントホーム担当:タルタニ・高野 |
| この物件のお問い合わせ先 | ||
|---|---|---|
|
物件番号 | 200027012219 |
|
||


