貸店舗物件を探す
Shop Search物件詳細情報神戸市中央区三宮町2丁目
| 物件カテゴリ | 店舗・居抜き店舗・重飲食 |
|---|---|
| 交通 |
・阪急神戸線神戸三宮より徒歩4分 |
| 所在地 | 神戸市中央区三宮町2丁目 MAP |
| 保証金/敷引・償却金 | -/- |
| 権利金/契約期間 | -/2年 |
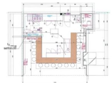
| 専有面積/坪数/坪単価 | 31.62m2/9.57坪/26,437円 |
| 駐車場/駐車可能台数 | /- |
| 取引態様 | 媒介 |
| 完成年月 | 1978年3月 |
| その他費用 | 造作譲渡金 3,000,000円 |
| 建物構造/建物階数 | 鉄骨鉄筋コンクリート造9階建て(地下2階) |
| 所在階/部屋番号 | 地下1階部分/B1-A21号室 |
| 現況 | 空き |
| 引渡し | 相談 |
| 設備・条件 | トイレ、エアコン、キッチン、照明 |
| コメント | センタープラザ地下のラーメン店居抜き、カウンター14席!倉庫(3坪)付です。 お探しの方は是非ご連絡お願い致します。 テナントホーム担当タルタニ TEL:078-335-7835 |
| この物件のお問い合わせ先 | ||
|---|---|---|
|
物件番号 | 200027012225 |
|
||


