貸店舗物件を探す
Shop Search物件詳細情報神戸市中央区磯上通4丁目
| 物件カテゴリ | 店舗・物販・重飲食 |
|---|---|
| 交通 |
・阪急神戸線神戸三宮より徒歩6分 |
| 所在地 | 神戸市中央区磯上通4丁目 MAP |
| 保証金/敷引・償却金 | -/- |
| 権利金/契約期間 | -/5年 |
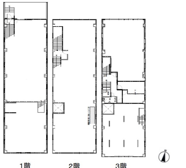
| 専有面積/坪数/坪単価 | 686.37m2/207.63坪/6,357円 |
| 駐車場/駐車可能台数 | /- |
| 取引態様 | 媒介 |
| 完成年月 | 1965年3月 |
| その他費用 | 敷引き 2,376,000円 |
| 建物構造/建物階数 | 鉄筋コンクリート造6階建て |
| 所在階/部屋番号 | 地上1階部分/1棟号室 |
| 現況 | 空き |
| 引渡し | 相談 |
| 設備・条件 | エアコン、キッチン、管理、シャッター |
| コメント | 1階~3階と半地下付の1棟貸し、店舗・事務所です!飲食可能、現状渡し、水回り・空調設備・什器備品が残置物として有ります。 三宮で利便性良いオフィス街の立地です! お探しの方ご連絡ください。 テナントホーム担当:タルタニ |
| この物件のお問い合わせ先 | ||
|---|---|---|
|
物件番号 | 200027012265 |
|
||





