貸店舗物件を探す
Shop Search物件詳細情報神戸市中央区旭通3丁目
| 物件カテゴリ | 店舗・軽飲食・重飲食 |
|---|---|
| 交通 |
|
| 所在地 | 神戸市中央区旭通3丁目 MAP |
| 保証金/敷引・償却金 | -/- |
| 権利金/契約期間 | -/2年 |
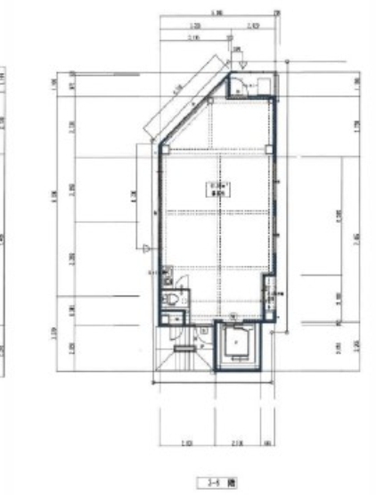
| 専有面積/坪数/坪単価 | 50.5m2/15.28坪/15,118円 |
| 駐車場/駐車可能台数 | /- |
| 取引態様 | 媒介 |
| 完成年月 | 2023年7月 |
| その他費用 | - |
| 建物構造/建物階数 | 鉄骨鉄筋コンクリート造6階建て |
| 所在階/部屋番号 | 地上3階部分/3F号室 |
| 現況 | 空き予定 |
| 引渡し | 相談 |
| 設備・条件 | トイレ、エレベータ、エアコン、キッチン、インターネット、照明 |
| コメント | 三宮・旭通の店舗・事務所。トイレ・ミニキッチン・エアコン有ります! テナント専門担当が他社にない物件も含めて物件のご紹介をさせて頂きます。 もちろん条件等も含め良いご提案やご紹介をさせて頂きます。ご連絡お待ちしてます。 テナントホーム担当:タルタニ・高野 |
| この物件のお問い合わせ先 | ||
|---|---|---|
|
物件番号 | 200027012288 |
|
||







