貸店舗物件を探す
Shop Search物件詳細情報神戸市中央区下山手通3丁目
| 物件カテゴリ | 店舗・物販 |
|---|---|
| 交通 |
・神戸地下鉄西神線県庁前より徒歩8分 |
| 所在地 | 神戸市中央区下山手通3丁目 MAP |
| 保証金/敷引・償却金 | -/- |
| 権利金/契約期間 | -/7年 |
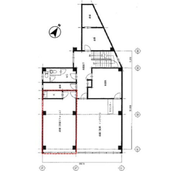
| 専有面積/坪数/坪単価 | 30.4m2/9.2坪/11,957円 |
| 駐車場/駐車可能台数 | /- |
| 取引態様 | 媒介 |
| 完成年月 | 1960年2月 |
| その他費用 | - |
| 建物構造/建物階数 | 鉄筋コンクリート造4階建て |
| 所在階/部屋番号 | 地上3階部分/301号室 |
| 現況 | 空き |
| 引渡し | 即引渡し可 |
| 設備・条件 | トイレ、エレベータ、エアコン、給湯、キッチン、照明 |
| コメント | 生田新道沿いのレトロ調ビル、3階店舗・事務所です!飲食店不可、物販可。トイレ共用・給湯室有ります! 三宮・元町で店舗をお探しの方、ご連絡ください。 テナント専門担当者が良いご提案や紹介をさせていただきます。 もちろん諸条件のご相談もお任せください。 テナントホーム担当:高野 TEL:078-335-7835 |
| この物件のお問い合わせ先 | ||
|---|---|---|
|
物件番号 | 200027012333 |
|
||





