貸店舗物件を探す
Shop Search物件詳細情報神戸市中央区元町通7丁目
| 物件カテゴリ | 店舗・医院・美容 |
|---|---|
| 交通 |
・神戸高速線西元町より徒歩2分 |
| 所在地 | 神戸市中央区元町通7丁目 MAP |
| 保証金/敷引・償却金 | -/- |
| 権利金/契約期間 | -/2年 |
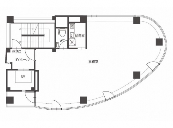
| 専有面積/坪数/坪単価 | 58.58m2/17.72坪/8,070円 |
| 駐車場/駐車可能台数 | /- |
| 取引態様 | 媒介 |
| 完成年月 | 1989年5月 |
| その他費用 | 看板製作費(初回) 16,500円 セキュリティ費/月 5,500円 |
| 建物構造/建物階数 | 鉄骨造10階建て |
| 所在階/部屋番号 | 地上4階部分/4F号室 |
| 現況 | 空き予定 |
| 引渡し | 期日指定 |
| 設備・条件 | トイレ、エレベータ、エアコン、給湯、キッチン、管理、照明 |
| コメント | 神戸駅から徒歩6分、西元町駅から徒歩2分の好立地!2022年4月外装・内装リニューアル!1フロア1テナントで日当たり良好☆事務所・美容系等におススメの物件です!2026年6月~入居可能です。お問い合わせお待ちしております! テナントホーム担当:タルタニ |
| この物件のお問い合わせ先 | ||
|---|---|---|
|
物件番号 | 200027012379 |
|
||







